Mieszkanie na sprzedaż

Słupsk
OFERTA NR: 6999176
399 000 zł

Specyfikacja

CENA
399 000 zł
STATUS
Aktualna
LOKALIZACJA
Słupsk
POWIERZCHNIA
61 m2
PIĘTRO
3p
BALKON
jest
PIWNICA
jest
ILOŚĆ POKOI
3
WPROWADZONO
2026-02-20
CENA ZA M2
6474.12 zł

Opis nieruchomości

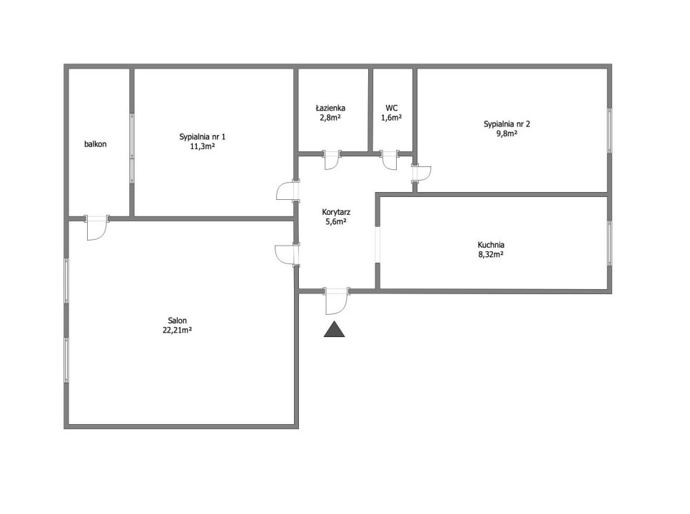
PROPONUJEMY NA SPRZEDAŻ PRZESTRONNE 3-POKOJOWE MIESZKANIE O POWIERZCHNI 61,63 m² POŁOŻONE NA III PIĘTRZE W CENTRUM MIASTA PRZY UL. KOŁŁĄTAJA!

Oferujemy na sprzedaż jasne, dwustronne i bardzo funkcjonalne mieszkanie o powierzchni 61,63 m², położone na trzecim piętrze w budynku z 1993 roku. Nieruchomość znajduje się w doskonałej lokalizacji – w samym centrum miasta, z pełną infrastrukturą w zasięgu ręki.

Mieszkanie jest bardzo dobrze doświetlone dzięki dwustronnej ekspozycji oraz dużym oknom PCV, które zapewniają naturalne światło przez cały dzień. Dodatkowym atutem jest przestronna loggia, idealna do wypoczynku.

W skład mieszkania wchodzi:

  • przestronny, ustawny salon z wyjściem na dużą loggię,
  • dwie niezależne sypialnie,
  • osobna, funkcjonalna kuchnia,
  • łazienka,
  • oddzielne WC,
  • przedpokój.

Do mieszkania przynależy piwnica, która zapewnia dodatkowe miejsce do przechowywania.

Budynek jest na bieżąco administrowany, wykonano remont dachu oraz balkonów. W planach na przyszłość jest wykonanie nowej elewacji wraz z dociepleniem budynku, co dodatkowo podniesie standard oraz komfort mieszkańców.

Czynsz do administracji wynosi około 650 zł miesięcznie (zależny od zużycia mediów).

W mieszkaniu wykonana została instalacja miedziana. Przed budynkiem oraz z jego tyłu dostępne są ogólnodostępne miejsca parkingowe dla mieszkańców.

Istnieje możliwość zakupu murowanego garażu w cenie 50 000 PLN – idealne rozwiązanie dla osób poszukujących dodatkowego komfortu i bezpieczeństwa dla swojego samochodu.

Lokalizacja – ścisłe centrum miasta:
Nieruchomość położona jest w bardzo atrakcyjnej i wygodnej części miasta. W pobliżu znajdują się:

  • Kaufland,
  • dworzec PKS i PKP,
  • przychodnia lekarska,
  • liczne sklepy, punkty usługowe i gastronomiczne,
  • szkoły, przedszkola oraz komunikacja miejska.

To idealna propozycja dla rodzin, par oraz osób ceniących komfort życia w centrum miasta z łatwym dostępem do wszystkich udogodnień.

CENA: 399 000 PLN
Strona Kupująca pokrywa wynagrodzenie prowizyjne dla biura.

Więcej informacji uzyskasz kontaktując się z nami:
669 647 067 – Karolina Jakuczun (opiekun oferty)

728 202 030 – Marta Patyna
503 901 101 – Adrianna Iwanicka, licencja 23687
728 111 007 – Przemek Pryzwan
799 799 397 – Dominika Szramiak
799 333 633 - Dominika Wójcik

Serdecznie zapraszam Państwa na prezentację nieruchomości, z przyjemnością odpowiem na wszelkie pytania oraz udzielę dodatkowych informacji.

Zamierzasz kupić nieruchomość i skorzystać z finansowania banku? Pomożemy dokonać Ci dobrego wyboru najlepszej oferty spośród wielu banków. Nasz doradca dostosuje ofertę kredytu hipotecznego do Twoich potrzeb i oczekiwań oraz będzie do Twojej dyspozycji na każdym etapie procesu kredytowego.

Niniejsza oferta nie stanowi oferty w rozumieniu Kodeksu Cywilnego, a dane w niej zawarte mają jedynie charakter informacyjny i mogą ulec zmianie.


Masz pytania odnośnie oferety? Napisz do nas.
WYSZUKAJ NIERUCHOMOŚĆ
KALKULATOR KOSZTÓW

Podatek PCC:

Taksa notarialna:

VAT od taksy notarialnej:

Opłaty sądowe:

Wypis aktu notarialnego:

Prowizja pośrednika:

VAT od prowizji pośrednika:

Suma:

MAPA