Mieszkanie na sprzedaż

Słupsk
OFERTA NR: 6992624
299 000 zł

Specyfikacja

CENA
299 000 zł
STATUS
Aktualna
LOKALIZACJA
Słupsk
POWIERZCHNIA
47 m2
PIĘTRO
2p
BALKON
jest
PIWNICA
jest
ILOŚĆ POKOI
2
WPROWADZONO
2026-02-06
CENA ZA M2
6248.69 zł

Opis nieruchomości

NA SPRZEDAŻ | PRZESTRONNE 2-POKOJOWE MIESZKANIE DO GENERALNEGO REMONTU | 47,85 m² | UL. LIPOWA – Słupsk

Oferujemy na sprzedaż ustawne i funkcjonalne 2-pokojowe mieszkanie o powierzchni 47,85 m², zlokalizowane na 2 piętrze w niskim, 3-piętrowym bloku przy ul. Lipowej w Słupsku. Nieruchomość znajduje się w stanie do generalnego remontu, co stanowi ogromny atut dla osób, które chcą stworzyć wnętrze w pełni dopasowane do własnych potrzeb, stylu i budżetu.

Układ mieszkania daje wiele możliwości aranżacyjnych – zarówno w klasycznym układzie dwóch pokoi z oddzielną kuchnią, jak i w nowoczesnej wersji z częściowo otwartą strefą dzienną.

To propozycja idealna dla:

  • osób szukających pierwszego mieszkania,
  • par,
  • rodzin z dzieckiem,
  • inwestorów planujących zakup pod wynajem długo- lub krótkoterminowy.

Powierzchnia i funkcjonalny układ

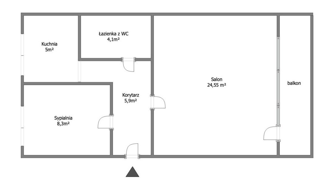
Na 47,85 m² składają się:

  • przestronny salon z wyjściem na duży balkon typu loggia,
  • ustawna sypialnia,
  • oddzielna, widna kuchnia,
  • łazienka z WC,
  • przedpokój z miejscem na szafę w zabudowie.

Dodatkowo do mieszkania przynależy piwnica, która zapewnia wygodną przestrzeń do przechowywania.

Stan techniczny

  • okna: drewniane
  • instalacja elektryczna: aluminiowa
  • ciepła woda: z piecyka gazowego
  • ogrzewanie: z sieci miejskiej
  • czynsz administracyjny: 494,31 zł

Lokal wymaga przeprowadzenia generalnego remontu, co daje pełną swobodę w zakresie doboru materiałów, kolorystyki oraz standardu wykończenia. Dzięki temu nowy właściciel może stworzyć mieszkanie idealnie odpowiadające swoim oczekiwaniom.

Budynek i otoczenie

  • niski, 3-piętrowy blok
  • zadbana klatka schodowa
  • spokojne, zielone osiedle
  • w sąsiedztwie sklepy, szkoły, przedszkola, punkty usługowe
  • dobra komunikacja z centrum miasta
  • liczne tereny zielone i place zabaw
  • ogólnodostępne miejsca parkingowe przy budynku

 

Najważniejsze atuty nieruchomości

  • duży metraż jak na mieszkanie 2-pokojowe
  • osobna kuchnia
  • balkon typu loggia
  • dobre, wygodne piętro
  • spokojna i dobrze skomunikowana lokalizacja
  • świetna baza pod własną aranżację
  • atrakcyjna opcja inwestycyjna


Cena nieruchomości: 299 000 PLN

Strona Kupująca pokrywa wynagrodzenie prowizyjne dla biura.

Serdecznie zapraszam Państwa na prezentację nieruchomości, z przyjemnością odpowiem na wszelkie pytania oraz udzielę dodatkowych informacji.

Zamierzasz kupić nieruchomość i skorzystać z finansowania banku? Pomożemy dokonać Ci dobrego wyboru najlepszej oferty spośród wielu banków. Nasz doradca dostosuje ofertę kredytu hipotecznego do Twoich potrzeb i oczekiwań oraz będzie do Twojej dyspozycji na każdym etapie procesu kredytowego.

Niniejsza oferta nie stanowi oferty w rozumieniu Kodeksu Cywilnego, a dane w niej zawarte mają jedynie charakter informacyjny i mogą ulec zmianie.


Masz pytania odnośnie oferety? Napisz do nas.
WYSZUKAJ NIERUCHOMOŚĆ
KALKULATOR KOSZTÓW

Podatek PCC:

Taksa notarialna:

VAT od taksy notarialnej:

Opłaty sądowe:

Wypis aktu notarialnego:

Prowizja pośrednika:

VAT od prowizji pośrednika:

Suma:

MAPA