Dom na sprzedaż

Strzelino
OFERTA NR: 6983374
1 199 000 zł

Specyfikacja

CENA
1 199 000 zł
STATUS
Aktualna
LOKALIZACJA
Strzelino
POWIERZCHNIA
149 m2
PIĘTRO
0
ILOŚĆ POKOI
4
WPROWADZONO
2026-01-19
CENA ZA M2
8046.98 zł

Opis nieruchomości

PREZENTUJEMY NA SPRZEDAŻ nowoczesny dom wolnostojący w Strzelinie

  • powierzchnia zabudowy: 148,7 m²

  • powierzchnia użytkowa: 122,8 m²

  • działka: 1052 m² (płaska, dobrze nasłoneczniona)

  • rok budowy: 2019 r.
     

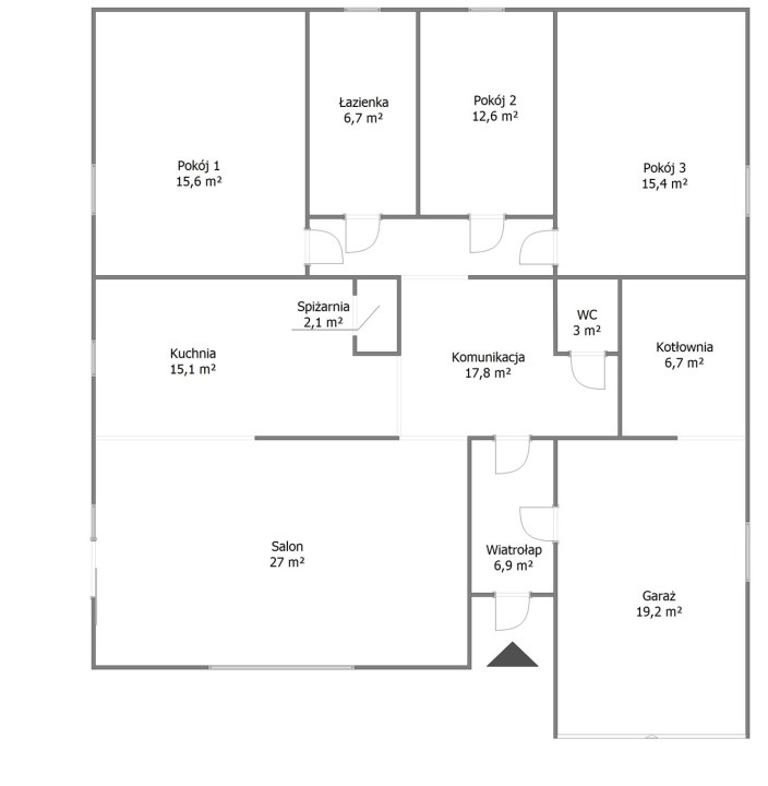
Układ pomieszczeń (parter)

  • wiatrołap – 6,9 m²

  • komunikacja – 17,8 m² (szeroka, funkcjonalna)

  • kuchnia – 15,1 m²

  • spiżarnia – 2,1 m²

  • salon – 27 m²

  • 3 pokoje – 15,6 m² / 15,4 m² / 12,6 m² (jeden może pełnić funkcję garderoby)

  • łazienka – 6,7 m²

  • WC – 3 m²

  • garaż – 19,2 m² (jednostanowiskowy)

  • kotłownia / pom. gospodarcze – 6,7 m²
     

Wyposażenie i elementy, które robią robotę

  • kominek w salonie – centralnie zaplanowany, buduje klimat i „serce domu”

  • salon z wyjściem na taras – duże, wygodne przejście do strefy wypoczynku na zewnątrz

  • strefa dzienna otwarta na komunikację – więcej światła i poczucie przestrzeni

  • kuchnia ze spiżarnią – praktyczne miejsce do przechowywania (zapasy, sprzęty, przetwory – cała logistyka domu)
     

Stolarka okienna i osłony

  • okna PCV trzyszybowe – lepsza izolacja termiczna i akustyczna

  • rolety zewnętrzne – komfort, prywatność, ochrona przed słońcem i dodatkowa izolacja
     

Ogrzewanie i instalacje

  • ogrzewanie centralne: piec gazowy dwufunkcyjny (CO + ciepła woda)

  • monitoring + alarm – gotowy pakiet bezpieczeństwa

Lokalizacja i otoczenie

  • zabudowa jednorodzinna wolnostojąca

  • cisza, spokój, dużo zieleni (fauna i flora)

  • dogodny dojazd do Słupska – infrastruktura w zasięgu, bez rezygnacji z prywatności

DODATKOWE INFORMACJE:
- rok budowy – 2019r.,
- powierzchnia działki – 1052m2,
- ogrzewanie centralne – piec dwufunkcyjny gazowy,
- kominek w salonie,
- wszystkie okna PCV trzyszybowe, wyposażone w rolety zewnętrzne,
- dom wyposażony w system monitoringu i alarmu,
- materiał konstrukcyjny – Ytong,
- dachówka ceramiczna,
- garaż jednostanowiskowy,
- możliwość zaadoptowania poddasza
- panele fotowoltaiczne -  2,76 kW
- ogrodzenie domu:  od front murowane z elementami żelbetowymi, od boków siatka, tył - do połowy murowane od połowa siatka
- studnia na wodę deszczową - 6000 l


CENA: 1 199 000 PLN
Wynagrodzenie prowizyjne dla biura pokrywa strona Kupująca.

Więcej informacji uzyskasz kontaktując się z nami:
728 111 007 – Przemek Pryzwan
799 799 313 – Marta Rutkowska
728 202 030 – Marta Patyna
503 901 101 – Adrianna Iwanicka
www.gryfnieruchomosci.pl

Serdecznie zapraszam Państwa na prezentację nieruchomości, z przyjemnością odpowiem na wszelkie pytania oraz udzielę dodatkowych informacji.

Zamierzasz kupić nieruchomość i skorzystać z finansowania banku? Pomożemy dokonać Ci dobrego wyboru najlepszej oferty spośród wielu banków. Nasz doradca dostosuje ofertę kredytu hipotecznego do Twoich potrzeb i oczekiwań oraz będzie do Twojej dyspozycji na każdym etapie procesu kredytowego.

Niniejsza oferta nie stanowi oferty w rozumieniu Kodeksu Cywilnego, a dane w niej zawarte mają jedynie charakter informacyjny i mogą ulec zmianie.


Masz pytania odnośnie oferety? Napisz do nas.
WYSZUKAJ NIERUCHOMOŚĆ
KALKULATOR KOSZTÓW

Podatek PCC:

Taksa notarialna:

VAT od taksy notarialnej:

Opłaty sądowe:

Wypis aktu notarialnego:

Prowizja pośrednika:

VAT od prowizji pośrednika:

Suma:

MAPA