Mieszkanie na sprzedaż

Słupsk
OFERTA NR: 6978310
350 000 zł

Specyfikacja

CENA
350 000 zł
STATUS
Aktualna
LOKALIZACJA
Słupsk
POWIERZCHNIA
43 m2
PIĘTRO
4p
BALKON
jest
PIWNICA
jest
ILOŚĆ POKOI
2
WPROWADZONO
2026-01-07
CENA ZA M2
8010.99 zł

Opis nieruchomości

Proponujemy do sprzedaży atrakcyjne, dwupokojowe mieszkanie z balkonem w centrum miasta przy ulicy Mikołajskiej w Słupsku!
 

Lokal mieszkalny usytuowany na czwartym piętrze budynku zlokalizowanego przy ulicy Mikołajskiej w samym centrum miasta. Do mieszkania dostaniemy się z czystej i zadbanej klatki schodowej, wyposażonej w domofon. Przed budynkiem znajdują się miejsca parkingowe dla mieszkańców.
Mieszkanie jest dwustronne, słoneczne i dobrze rozplanowane – każdy metr został wykorzystany w przemyślany sposób. Już od wejścia czuć tu porządek i komfort. Wnętrze jest po odświeżeniu, utrzymane w jasnych barwach, dzięki czemu stanowi idealną bazę zarówno dla minimalistów, jak i osób lubiących bardziej wyrazisty styl.

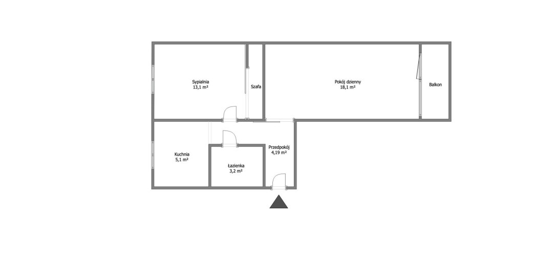
Układ mieszkania

Mieszkanie to powierzchnia użytkowa 43,69 m2, na którą składa się:

- jasny i przestronny pokój z wyjściem na balkon, z którego rozpościera się piękny widok na park oraz bulwary nad rzeką Słupią. Duże okna zapewniają piękne doświetlenie i widok na zieleń parku,

- sypialnia z dużą szafą w zabudowie, w której możemy przechować wszystkie niezbędne rzeczy,

- osobna kuchnia z meblami, piekarnikiem, okapem, zlewem, kuchenką gazową,

- łazienka z toaletą, wanną, umywalką,

- przedpokój.

Idealna lokalizacja

Mieszkanie jest niezwykle ustawne, pięknie doświetlone i nasłonecznione. W pobliżu znajdziemy pełne zaplecze handlowo-usługowe, wszystko w zasięgu ręki - przystanek MZK, sklepy, apteka, przychodnie, szkoły, przedszkole a także żłobek miejski.
 

To mieszkanie jest idealne, jeśli szukasz:
- gotowego do wprowadzenia, zadbanego lokalu,
- świetnej lokalizacji blisko centrum,
- funkcjonalnego układu z osobną kuchnią,
- mieszkania inwestycyjnego pod wynajem,
- przestrzeni bez konieczności remontu.

Dodatkowe informacje:

- stan prawny: pełna własność,

- ekspozycja mieszkania wschód-zachód,

- ogrzewanie z sieci miejskiej,

- ciepła woda z pieca gazowego,

- wszystkie okna PCV,

- balkon z widokiem,

- piwnica,

- miejsca parkingowe dla mieszkańców przed budynkiem,

- czynsz do Wspólnoty Mieszkaniowej ok. 570 zł/3 osoby,

- budynek z 1968r.,

- budynek jest ocieplony.
 

Cena nieruchomości: 350 000 PLN

Strona Kupująca pokrywa wynagrodzenie prowizyjne dla biura.
 

Więcej informacji uzyskasz kontaktując się z nami:

799 799 397 - Dominika Szramiak

503 901 101 - Adrianna Iwanicka

728 111 007 - Przemek Pryzwan

728 202 030 - Marta Patyna

799 077 000 - Wiktoria Gołębiewska

669 647 067 - Karolina Jakuczun

799 333 633 - Dominika Wójcik

www.gryfnieruchomosci.pl

Serdecznie zapraszam Państwa na prezentację nieruchomości, z przyjemnością odpowiem na wszelkie pytania oraz udzielę dodatkowych informacji.

Zamierzasz kupić nieruchomość i skorzystać z finansowania banku? Pomożemy dokonać Ci dobrego wyboru najlepszej oferty spośród wielu banków. Nasz doradca dostosuje ofertę kredytu hipotecznego do Twoich potrzeb i oczekiwań oraz będzie do Twojej dyspozycji na każdym etapie procesu kredytowego.

Niniejsza oferta nie stanowi oferty w rozumieniu Kodeksu Cywilnego, a dane w niej zawarte mają jedynie charakter informacyjny i mogą ulec zmianie.


Masz pytania odnośnie oferety? Napisz do nas.
WYSZUKAJ NIERUCHOMOŚĆ
KALKULATOR KOSZTÓW

Podatek PCC:

Taksa notarialna:

VAT od taksy notarialnej:

Opłaty sądowe:

Wypis aktu notarialnego:

Prowizja pośrednika:

VAT od prowizji pośrednika:

Suma:

MAPA