Hala do wynajęcia

Słupsk
OFERTA NR: 6937262
8000 zł

Specyfikacja

CENA
8000 zł
STATUS
Aktualna
LOKALIZACJA
Słupsk
POWIERZCHNIA
250 m2
PIĘTRO
parter
ILOŚĆ POKOI
5
WPROWADZONO
2025-10-03
CENA ZA M2
0.00 zł

Opis nieruchomości

Wynajem hali w centrum Słupska – ul. Przemysłowa

Mamy przyjemność zaprezentować Państwu wyjątkową ofertę wynajmu hali o powierzchni około 250 m², położonej w sercu Słupska, przy ul. Przemysłowej. To idealna propozycja dla przedsiębiorców poszukujących funkcjonalnej i dobrze skomunikowanej przestrzeni do prowadzenia działalności.

Opis obiektu:

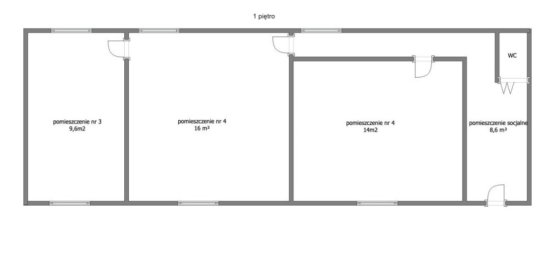
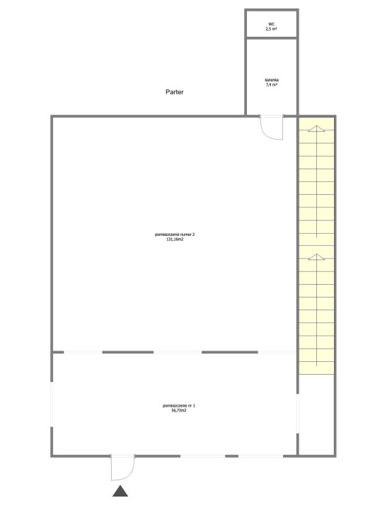
  • Powierzchnia całkowita: ok. 250 m²
  • Układ funkcjonalny: hala składa się z 5 pomieszczeń – przestrzeni głównej oraz kilku mniejszych, które mogą pełnić rolę biur, magazynów podręcznych, zaplecza socjalnego lub warsztatu specjalistycznego.
  • Stan techniczny: obiekt w dobrym stanie, gotowy do użytkowania, z możliwością dostosowania pod indywidualne potrzeby najemcy.
  • Dojazd i dostęp: dogodny dojazd zarówno dla samochodów osobowych, jak i dostawczych; przed halą znajdują się miejsca parkingowe dla klientów i pracowników.

Atuty nieruchomości:

  • Świetna lokalizacja – centrum miasta, w pobliżu głównych arterii komunikacyjnych.
  • Uniwersalne zastosowanie – hala idealna pod magazyn, warsztat, działalność usługowo-produkcyjną, logistyczną, a także hurtownię.
  • Dostępność od zaraz – nie wymaga skomplikowanych adaptacji.
  • Elastyczny układ – 5 pomieszczeń umożliwia dostosowanie przestrzeni do różnych potrzeb biznesowych.
  • Parking na miejscu – komfort dla pracowników i klientów.

Warunki najmu

  • Czynsz: 8 000 PLN + media
  • Kaucja zwrotna: 8 000 PLN
  • Wynagrodzenie pośrednika: 8 000 PLN

Dla kogo?

Hala świetnie sprawdzi się dla:

  • firm handlowych i dystrybucyjnych (hurtownie, magazyny)
  • przedsiębiorstw produkcyjnych
  • warsztatów samochodowych i specjalistycznych
  • firm budowlanych i usługowych potrzebujących przestrzeni do pracy i przechowywania sprzętu
  • osób poszukujących dużej, centralnie położonej przestrzeni użytkowej


Masz pytania odnośnie oferety? Napisz do nas.
WYSZUKAJ NIERUCHOMOŚĆ
KALKULATOR KOSZTÓW

Podatek PCC:

Taksa notarialna:

VAT od taksy notarialnej:

Opłaty sądowe:

Wypis aktu notarialnego:

Prowizja pośrednika:

VAT od prowizji pośrednika:

Suma:

MAPA