Mieszkanie na sprzedaż

Zimowiska
OFERTA NR: 6932064
619 000 zł

Specyfikacja

CENA
619 000 zł
STATUS
Aktualna
LOKALIZACJA
Zimowiska
POWIERZCHNIA
102 m2
PIĘTRO
parter
ILOŚĆ POKOI
4
WPROWADZONO
2025-09-24
CENA ZA M2
6039.02 zł

Opis nieruchomości

Na sprzedaż przestronne mieszkanie 102,50 m² z ogródkiem 110 m² – Zimowiska, gmina Ustka

Oferujemy wyjątkowe, klimatyczne mieszkanie o powierzchni 102,50 m², położone na parterze zabytkowego budynku w malowniczej miejscowości Zimowiska, w gminie Ustka, powiat słupski. Lokal wyróżnia się niepowtarzalnym charakterem, dużym ogrodem 110 m² oraz funkcjonalnym układem pomieszczeń. Położenie zaledwie 200 m od głównej drogi, co zapewnia szybki dojazd, przy jednoczesnym zachowaniu ciszy i spokoju.

To idealna propozycja dla osób szukających przestrzeni, kontaktu z naturą i bliskości nadmorskich atrakcji – Zimowiska to spokojna wieś w gminie Ustka, położona tylko 5 km od Ustki i 14 km od Słupska. W zasięgu kilku minut znajdują się: plaża w Ustce, tereny leśne, sklepy, szkoły i pełna infrastruktura miejska Słupska.


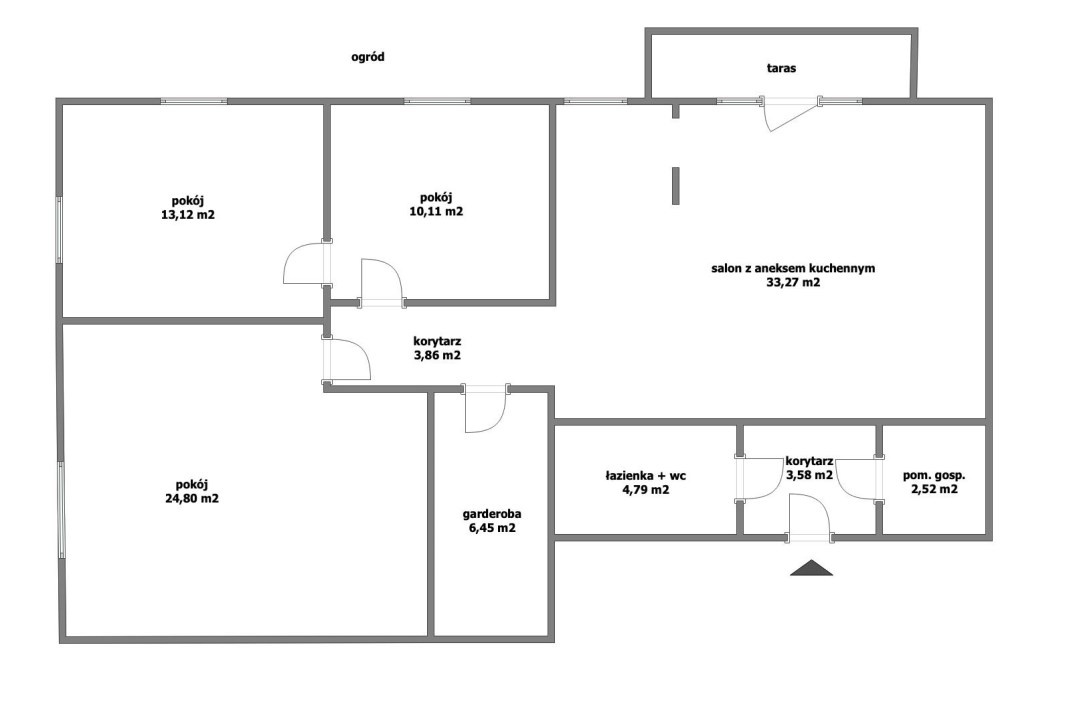
Układ i pomieszczenia

  • Strefa dzienna – przestronny salon z jadalnią i aneksem kuchennym, z wyjściem na taras i ogród. W salonie znajduje się termo kominek na pellet – czysty w użytkowaniu, bez kurzu i dymu, zapewniający ekonomiczne ciepło i wyjątkowy klimat.
  • Kuchnia – w zabudowie, w formie stylowego kredensu, z pełnym wyposażeniem AGD (piekarnik, zmywarka, lodówka).
  • Sypialnia główna – jasna i duża, z łóżkiem i pojemną szafą w zabudowie z lustrami.
  • Pokój II – z dwoma dużymi oknami, idealny jako dodatkowa sypialnia, pokój gościnny lub gabinet.
  • Pokój III – funkcjonalny, świetnie sprawdzi się jako pokój dziecka, biuro lub pracownia.
  • Łazienka –nowoczesna, z prysznicem walk-in, WC, umywalką i miejscem na pralkę.
  • Komunikacja – szeroki korytarz z miejscem na szafę.
  • Pomieszczenie gospodarcze – praktyczne zaplecze do przechowywania pelletu i innych rzeczy.

Przestrzeń dodatkowa

  • ogród 110 m² – świetne miejsce na relaks, ogródek warzywny, plac zabaw czy letnie spotkania przy grillu,
  • zadaszony taras z widokiem na zieleń - z którego prowadzą schodu do ogrodu,
  • duży, dwupoziomowy strych – dostępny do wspólnego użytkowania przez mieszkańców budynku, co daje dodatkową przestrzeń do przechowywania.

Ogrzewanie i instalacje

  • nowy termo kominek na pellet – ekonomiczne ogrzewanie, piec łatwy w użytkowaniu, bez kurzu i dymu,
  • ogrzewanie częściowo podłogowe + tradycyjne grzejniki,
  • ciepła woda z bojlera,
  • wymieniona instalacja elektryczna.

Okna

  • drewniane skrzynkowe – stylowe i atrakcyjne wizualnie, podkreślają klimat mieszkania,
  • mimo wieku charakteryzują się wysoką izolacją cieplną,
  • możliwość wymiany w ramach programu „Ciepłe mieszkanie” z dofinansowaniem.

Standard wykończenia

  • wysokie sufity, duże łukowe okna i niepowtarzalny klimat zabytkowej zabudowy,
  • na podłogach panele i płytki,
  • w cenie pozostają wszystkie meble widoczne na zdjęciach,
  • dach budynku wymieniony kilka lat temu,
  • w najbliższym czasie planowany remont elewacji i klatki schodowej.

Opłaty miesięczne (dla 2 osób)

  • 530 zł – fundusz remontowy i eksploatacyjny (możliwość odliczenia 50% kosztów od podatku rocznego z racji zabytkowego charakteru budynku),
  • woda wg zużycia – około 150 zł,
  • prąd wg zużycia – około 240 zł,
  • wywóz nieczystości – 100 zł.

Atuty nieruchomości

  • parter – wygodny dostęp i wyjście bezpośrednio do ogrodu,
  • duża powierzchnia 102,50 m² + ogród 110 m²,
  • tylko 200 m od głównej drogi – szybki dojazd, a jednocześnie cisza i spokój,
  • atrakcyjna lokalizacja – 5 km do Ustki, 14 km do Słupska,
  • bardzo ekonomiczne ogrzewanie,
  • wymieniona instalacja elektryczna,
  • zabytkowy budynek – możliwość odliczeń podatkowych,
  • duży, dwupoziomowy strych do wspólnego użytkowania,
  • ogólnodostępny parking przed budynkiem,
  • mieszkanie gotowe do zamieszkania, z pełnym wyposażeniem.



Cena: 619 000 zł 

Strona Kupująca pokrywa wynagrodzenie prowizyjne dla biura.

Więcej informacji uzyskasz kontaktując się z nami:
799 333 633 – Dominika Wójcik (opiekun oferty)
728 20 20 30 – Marta Patyna
669 647 067 – Karolina Jakuczun
503 901 101 – Adrianna Iwanicka, licencja 23687
799 077 000 – Wiktoria Gołębiewska
728 111 007 – Przemysław Pryzwan
799 799 397 – Dominika Szramiak

Serdecznie zapraszam Państwa na prezentację nieruchomości, z przyjemnością odpowiem na wszelkie pytania oraz udzielę dodatkowych informacji.

Zamierzasz kupić nieruchomość i skorzystać z finansowania banku? Pomożemy dokonać Ci dobrego wyboru najlepszej oferty spośród wielu banków. Nasz doradca dostosuje ofertę kredytu hipotecznego do Twoich potrzeb i oczekiwań oraz będzie do Twojej dyspozycji na każdym etapie procesu kredytowego.

Niniejsza oferta nie stanowi oferty w rozumieniu Kodeksu Cywilnego, a dane w niej zawarte mają jedynie charakter informacyjny i mogą ulec zmianie.


Masz pytania odnośnie oferety? Napisz do nas.
WYSZUKAJ NIERUCHOMOŚĆ
KALKULATOR KOSZTÓW

Podatek PCC:

Taksa notarialna:

VAT od taksy notarialnej:

Opłaty sądowe:

Wypis aktu notarialnego:

Prowizja pośrednika:

VAT od prowizji pośrednika:

Suma:

MAPA