Mieszkanie na sprzedaż

Słupsk
OFERTA NR: 6928446
990 000 zł

Specyfikacja

CENA
990 000 zł
STATUS
Aktualna
LOKALIZACJA
Słupsk
POWIERZCHNIA
113 m2
PIĘTRO
3p
BALKON
jest
PIWNICA
jest
ILOŚĆ POKOI
3
WPROWADZONO
2025-09-17
CENA ZA M2
8741.72 zł

Opis nieruchomości

NA SPRZEDAŻ – W PEŁNI WYPOSAŻONE DWUPOZIOMOWE MIESZKANIE Z ANTRESOLĄ W SŁUPSKU PRZY UL. SŁOWACKIEGO, Z OPCJĄ DOKUPIENIA GARAŻU

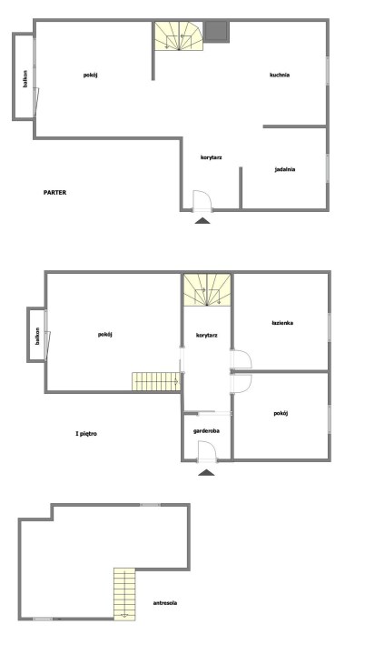
Oferujemy do sprzedaży wyjątkowe mieszkanie o łącznej powierzchni 113,25 m², położone na 3. i 4. piętrze w zadbanym bloku z 2000 roku przy ul. Słowackiego w Słupsku. Nieruchomość znajduje się w doskonałej lokalizacji – tuż przy Parku Kultury i Wypoczynku, w cichej i bezpiecznej okolicy, z szybkim dostępem do centrum miasta.

Mieszkanie jest zadbane, wykończone z wysokiej jakości materiałów z dbałością o każdy szczegół, co sprawia, że nie wymaga dodatkowych nakładów finansowych.

UKŁAD MIESZKANIA

Poziom I (3. piętro):

  • salon z wyjściem balkon,
  • jasna, otwarta kuchnia z oknem,
  • jadalnia,
  • przestronny korytarz.

Poziom II (4. piętro):
Na ten poziom prowadzą stylowe, drewniane wiszące schody. Znajdują się tutaj:

  • dwie duże sypialnie,
  • balkon,
  • duża, jasna łazienka z oknami, wyposażona w wannę i prysznic,
  • garderoba,
  • dodatkowe wejście z klatki schodowej „schowane” w garderobie

Poziom III (antresola):

  • przestrzeń z zabudowanymi szafami co daje wiele miejsca do przechowywania,
  • idealna opcja na pokój dodatkowy, pracownię lub strefę rekreacyjną.

Dzięki dwóm niezależnym wejściom z klatki schodowej z każdego piętra, mieszkanie posiada dodatkowy potencjał aranżacyjny, dający możliwość wydzielenia osobnej części lokalu.

PIWNICA

Do mieszkania przynależy piwnica o powierzchni 2,10 m², zapewniająca dodatkową przestrzeń do przechowywania.

BEZPIECZEŃSTWO

  • mieszkanie wyposażone w system alarmowy,
  • klatka schodowa zabezpieczona domofonem,

DODATKOWE ATUTY

  • mieszkanie sprzedawane w pełni wyposażone – wszystkie meble i sprzęty widoczne na zdjęciach zawarte są w cenie mieszkania,
  • niskie koszty utrzymania – czynsz do wspólnoty tylko 360 zł,
  • ogrzewanie i ciepła woda z sieci miejskiej.

GARAŻ

Istnieje możliwość dokupienia garażu w cenie 80 000 zł. Garaż zlokalizowany jest tuż przy wejściu do klatki, na zamkniętym terenie, co zapewnia dodatkowe bezpieczeństwo i wygodę.

LOKALIZACJA

Ulica Słowackiego to jedna z najbardziej atrakcyjnych lokalizacji w Słupsku – bezpośrednie sąsiedztwo terenów rekreacyjnych, bliskość centrum, szkół, sklepów oraz pełnej infrastruktury miejskiej, a jednocześnie spokój i bezpieczeństwo.


Cena:
990 000 zł - mieszkanie
80 000 zł - opcja dokupienia garażu

Strona Kupująca pokrywa wynagrodzenie prowizyjne dla biura.

Więcej informacji uzyskasz kontaktując się z nami:
799 333 633 – Dominika Wójcik (opiekun oferty)
728 20 20 30 – Marta Patyna
669 647 067 – Karolina Jakuczun
503 901 101 – Adrianna Iwanicka, licencja 23687
799 077 000 – Wiktoria Gołębiewska
728 111 007 – Przemysław Pryzwan
799 799 397 – Dominika Szramiak

Serdecznie zapraszam Państwa na prezentację nieruchomości, z przyjemnością odpowiem na wszelkie pytania oraz udzielę dodatkowych informacji.

Zamierzasz kupić nieruchomość i skorzystać z finansowania banku? Pomożemy dokonać Ci dobrego wyboru najlepszej oferty spośród wielu banków. Nasz doradca dostosuje ofertę kredytu hipotecznego do Twoich potrzeb i oczekiwań oraz będzie do Twojej dyspozycji na każdym etapie procesu kredytowego.

Niniejsza oferta nie stanowi oferty w rozumieniu Kodeksu Cywilnego, a dane w niej zawarte mają jedynie charakter informacyjny i mogą ulec zmianie.


Masz pytania odnośnie oferety? Napisz do nas.
WYSZUKAJ NIERUCHOMOŚĆ
KALKULATOR KOSZTÓW

Podatek PCC:

Taksa notarialna:

VAT od taksy notarialnej:

Opłaty sądowe:

Wypis aktu notarialnego:

Prowizja pośrednika:

VAT od prowizji pośrednika:

Suma:

MAPA