Mieszkanie na sprzedaż

Główczyce
OFERTA NR: 6901815
270 000 zł

Specyfikacja

CENA
270 000 zł
STATUS
Aktualna
LOKALIZACJA
Główczyce
POWIERZCHNIA
69 m2
PIĘTRO
3p
ILOŚĆ POKOI
4
WPROWADZONO
2025-07-24
CENA ZA M2
3859.35 zł

Opis nieruchomości

 PRZESTRONNE 4-POKOJOWE MIESZKANIE Z PIWNICĄ – GŁÓWCZYCE, UL. NA WZGÓRZU – 69,96 M²

4 pokoje | 1. piętro | dwustronne | piwnica 10 m² | spokojna okolica | pełna własność

Prezentujemy ofertę sprzedaży ustawnego, 4-pokojowego mieszkania o powierzchni 69,96 m², położonego na 3. piętrze zadbanego i ocieplonego budynku przy ul. Na Wzgórzu 10 w Główczycach. Do mieszkania przynależy piwnica o powierzchni 10 m².

Mieszkanie jest dwustronne, w pełni rozkładowe, co zapewnia wygodę i komfort codziennego użytkowania. Doskonała propozycja dla rodzin, osób pracujących z domu lub tych, którzy szukają funkcjonalnego lokum w spokojnej okolicy

Układ pomieszczeń i wyposażenie

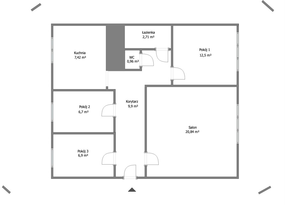
  • Przestronny korytarz (9,9 m²) z wejściami do wszystkich pomieszczeń, gwarantujący pełen rozkład mieszkania.
  • Pokój dzienny (20,8 m²) – jasny, ustawny, idealny salon z częścią wypoczynkową i jadalnianą.
  • Sypialnia (12,5 m²) – komfortowa, z miejscem na dużą szafę lub garderobę.
  • Dwa mniejsze pokoje (6,9 m² i 6,7 m²) – sprawdzą się jako pokoje dziecięce, gabinet lub pracownia.
  • Kuchnia (7,4 m²) – funkcjonalna, wyposażona w nowe szafki kuchenne, kuchenkę gazowo-elektryczną oraz zmywarkę.
  • Łazienka (2,7 m²) oraz osobne WC (1 m²) – praktyczne rozwiązanie dla całej rodziny, wykończone nową glazurą i wyposażone w nowe meble łazienkowe.
  • Na podłogach w pokojach znajdują się panele, a w kuchni – terakota.

 LOKALIZACJA – GŁÓWCZYCE, UL. NA WZGÓRZU

Główczyce to spokojna i dobrze rozwinięta miejscowość położona między Słupskiem a Łebą. W pobliżu znajduje się pełna infrastruktura: sklepy (Biedronka, Dino, ABC), szkoła, kościół, poczta, bank oraz hala sportowa. Okolica budynku jest zadbana, z ogólnodostępnymi miejscami parkingowymi dla mieszkańców. Idealne miejsce dla rodzin i osób ceniących spokój oraz bliskość natury.

DODATKOWE INFORMACJE:

  • pełna własność, brak obciążeń w księdze wieczystej
  • przynależna piwnica – 10 m²
  • budynek podłączony do lokalnej kotłowni
  • okna PCV i nowe rolety
  • drzwi wejściowe antywłamaniowe,
  • spokojna okolica
  • możliwość szybkiego wydania

CENA:  270 000 PLN
Strona Kupująca pokrywa wynagrodzenie prowizyjne dla biura

Więcej informacji uzyskasz kontaktując się z nami:
799 077 000 – Wiktoria Gołębiewska (opiekun oferty)
503 901 101 – Adrianna Iwanicka, licencja 23687
799 799 397 – Dominika Szramiak
728 202 030 – Marta Patyna
669 647 067 – Karolina Jakuczun
799 799 313 - Marta Rutkowska
728 111 007 – Przemek Pryzwan

Serdecznie zapraszam Państwa na prezentację nieruchomości, z przyjemnością odpowiem na wszelkie pytania oraz udzielę dodatkowych informacji.

Zamierzasz kupić nieruchomość i skorzystać z finansowania banku? Pomożemy dokonać Ci dobrego wyboru najlepszej oferty spośród wielu banków. Nasz doradca dostosuje ofertę kredytu hipotecznego do Twoich potrzeb i oczekiwań oraz będzie do Twojej dyspozycji na każdym etapie procesu kredytowego.

Niniejsza oferta nie stanowi oferty w rozumieniu Kodeksu Cywilnego, a dane w niej zawarte mają jedynie charakter informacyjny i mogą ulec zmianie.


Masz pytania odnośnie oferety? Napisz do nas.
WYSZUKAJ NIERUCHOMOŚĆ
KALKULATOR KOSZTÓW

Podatek PCC:

Taksa notarialna:

VAT od taksy notarialnej:

Opłaty sądowe:

Wypis aktu notarialnego:

Prowizja pośrednika:

VAT od prowizji pośrednika:

Suma:

MAPA