Lokal do wynajęcia

Słupsk
OFERTA NR: 5917272
4500 zł

Specyfikacja

CENA
4500 zł
STATUS
Aktualna
LOKALIZACJA
Słupsk
POWIERZCHNIA
77 m2
PIĘTRO
parter
ILOŚĆ POKOI
2
WPROWADZONO
2021-04-27
CENA ZA M2
58.34 zł

Opis nieruchomości

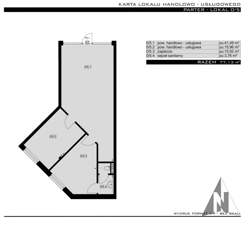
DO WYNAJĘCIA LOKAL UŻYTKOWY ZLOKALIZOWANY W SŁUPSKU PRZY Ul. Marii Zaborowskiej (OS. NIEPODLEGŁOŚCI) O POWIERZCHNI 77,13M2.

Oferujemy na wynajem lokal użytkowy w stanie deweloperskim w nowoczesnym budynku (r. 2020) zlokalizowanym w Słupsku przy ul. Marii Zaborowskiej. Idealne miejsce pod prowadzenie działalności!

OFFICE BOX to jedyny tak nowoczesny budynek o charakterze biurowym w Słupsku, oferujący powierzchnie przeznaczone zarówno na biura jak również gabinety. Zlokalizowany na jednym z najbardziej zaludnionych osiedli Słupska, przy tzw. ringu tj. u zbiegu ulic M. Zaborowskiej i 11- go Listopada (zajezdnia autobusowa). Oferowana do wynajmu powierzchnia znajduje się na pierwszej kondygnacjach (parterze) i daje ogromne możliwości adaptacji na różne rodzaje działalności. Wejście do lokalu odbywa się bezpośrednio z parkingu. Ogólnodostępny parking przed budynkiem.

Lokal to łączna powierzchnia 77,13 m2, na którą składają się dwa pomieszczenia handlowo – usługowe (41,49 m2 i 15,96 m2), zaplecze (15,92 m2), węzeł sanitarny z WC (3,76 m2).

DODATKOWE INFORMACJE:
- powierzchnia 77,13m2,
- ogrzewanie z sieci miejskiej,
- miejsca parkingowe ogólnodostępne przed budynkiem,
- mechaniczna wentylacja,
- możliwość umieszczenia szyldu reklamowego,
- lokal do własnej aranżacji,
- wynajem długoterminowy (min. rok czasu).

CENA NIERUCHOMOŚCI:
CZYNSZ WOLNY – 4500 zł netto + 23%VAT + MEDIA
KAUCJA ZWROTNA – 4500 zł,
Wynagrodzenie pośrednika jednorazowo jednomiesięczny czynsz wolny.

728 202 030 – Marta Patyna (opiekun oferty), licencja 31772
799 333 633 - Dominika Wójcik
669 647 067 - Karolina Jakuczun
728 111 007 - Przemek Pryzwan, licencja 31771
503 901 101 - Adrianna Iwanicka, licencja 23687
799 799 397 - Dominika Szramiak
799 077 000 - Wiktoria Gołębiewska

www.gryfnieruchomosci.pl

Serdecznie zapraszam Państwa na prezentację nieruchomości, z przyjemnością odpowiem na wszelkie pytania oraz udzielę dodatkowych informacji.

Zamierzasz kupić nieruchomość i skorzystać z finansowania banku? Pomożemy dokonać Ci dobrego wyboru najlepszej oferty spośród wielu banków. Nasz doradca dostosuje ofertę kredytu hipotecznego do Twoich potrzeb i oczekiwań oraz będzie do Twojej dyspozycji na każdym etapie procesu kredytowego.

Niniejsza oferta nie stanowi oferty w rozumieniu Kodeksu Cywilnego, a dane w niej zawarte mają jedynie charakter informacyjny i mogą ulec zmianie.


Masz pytania odnośnie oferety? Napisz do nas.
WYSZUKAJ NIERUCHOMOŚĆ
KALKULATOR KOSZTÓW

Podatek PCC:

Taksa notarialna:

VAT od taksy notarialnej:

Opłaty sądowe:

Wypis aktu notarialnego:

Prowizja pośrednika:

VAT od prowizji pośrednika:

Suma:

MAPA